Vendita
1160000 €

Elegante appartamento in vendita a Milano - Via Joe Colombo

Via Joe Colombo Milano 

Caratteristiche
  • Uso Residenziale
  • Piano
  • Città Milano
  • Disponibilità Disponibile al rogito
  • Contratto Vendita
Dettagli
  • Superficie MQ 90
  • Cucina parzialmente a vista
  • Camere 1
  • Arredamento Arredato
  • Posto auto box grande
Descrizione

Porta Nuova - Via Joe Colombo 16
Nella nuova area di Porta Nuova, il quartiere più rinomato e futuristico di Milano, che rappresenta uno degli esempi più interessanti di riqualificazione urbana nel cuore di una moderna città europea che ha ridisegnato e ridefinito sia il suo skyline che il suo carattere, e che offre una ricca rete di collegamenti di trasporto pubblico, 15 minuti dall’aeroporto di Linate, 5 minuti a piedi dalla stazione Garibaldi, a pochi passi da Brera e dal centro di Milano (metropolitana linea verde, gialla, lilla e passante ferroviario).
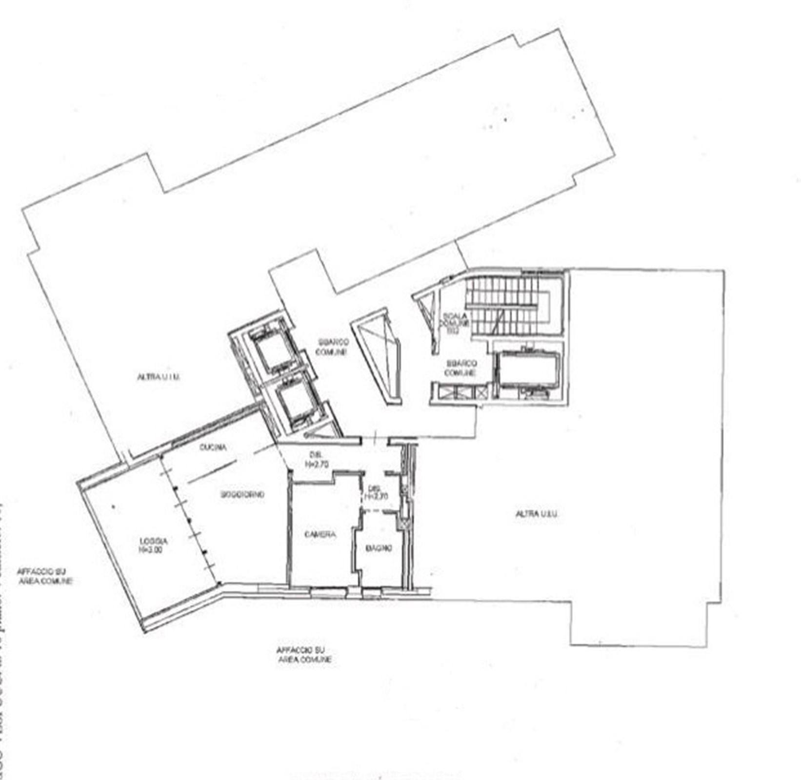
L’immobile si trova nella Torre Solea, una delle tre torri residenziali progettate dallo studio Miami Arquitectonica con lo studio Caputo. Si tratta di un appartamento posto al 2° piano, elegante e prestigioso, con uno stupendo terrazzo di 30mq piantumato, tranquillo e con vista panoramica
La superficie commerciale di 90mq circa comprende un soggiorno/pranzo con cucina parzialmente a vista. Le grandi vetrate a tutta parete mettono in comunicazione il soggiorno con il terrazzo, dando una sensazione di grande ampiezza. 
Attraverso un piccolo disimpegno che ne garantisce la privacy, si accede alla zona notte costituita da camera con cabina armadio e un bagno spazioso rivestito di pietra naturale con una bella vasca ovale e doccia sovrastante.
L’arredamento fisso, costituito da armadiature realizzate su misura in stile contemporaneo, è curato, armonioso e di design ed è incluso nel prezzo. Sofisticato impianto di domotica. Riscaldamento, aria condizionata e acqua calda centralizzati. Parquet in tutta la casa. L’edificio vanta un sistema di sicurezza all’avanguardia.
Servizio di portineria 24 ore. Cantina.
Classe Energetica B 40,5 kWh/m2a anno.
Prezzo richiesto per l’appartamento con cantina: € 1.160,000. 
Insieme alla proprietà viene venduto un box grande di 20mq situato nello stabile al costo di € 100.000.

 

Porta Nuova - Via Joe Colombo 16
In the new area of Porta Nuova, Milan's most renowned and futuristic district, which represents one of the most interesting examples of urban redevelopment in the heart of a modern European city that has redesigned and redefined both its skyline and its character, and which offers a rich network of public transport links, 20 minutes from Linate airport, 5 minutes on foot from Garibaldi station, a short walk from Brera and the centre of Milan (green, yellow and lilac metro lines and the railway link).
The property is located in Torre Solea, one of the three residential towers designed by Miami Arquitectonica with studio Caputo. This apartment, on the 2nd floor, elegant and prestigious, has a wonderful 30sqm terrace with plants and has a panoramic view
The commercial area of approximately 90sqm comprises an entrance, a living/dining room with a partially open kitchen and a double bedroom with a walk-in wardrobe. Large full-wall windows connect the living room with the terrace, giving a feeling of great spaciousness. 
The furnishings, carefully and harmoniously designed are included in the price. The building boasts a state-of-the-art security system.
Energy Class B 40.5 kWh/m2a year.
Centralized hot water, heating and cooling. 24 hour concierge service.
Sale price for the flat and a cellar: € 1.160,000 plus € 100.000 for a large garage of 20 sqm.

Mappa
*
*
*
*
*
*
*
*
inserisci il codice di controllo