Vendita
639000 €

Appartamento Milano in vendita - Via Enrico Caruso

Via Enrico Caruso Milano 

Caratteristiche
  • Uso Residenziale
  • Piano
  • Città Milano
  • Disponibilità Disponibile settembre 2021
  • Contratto Vendita
Dettagli
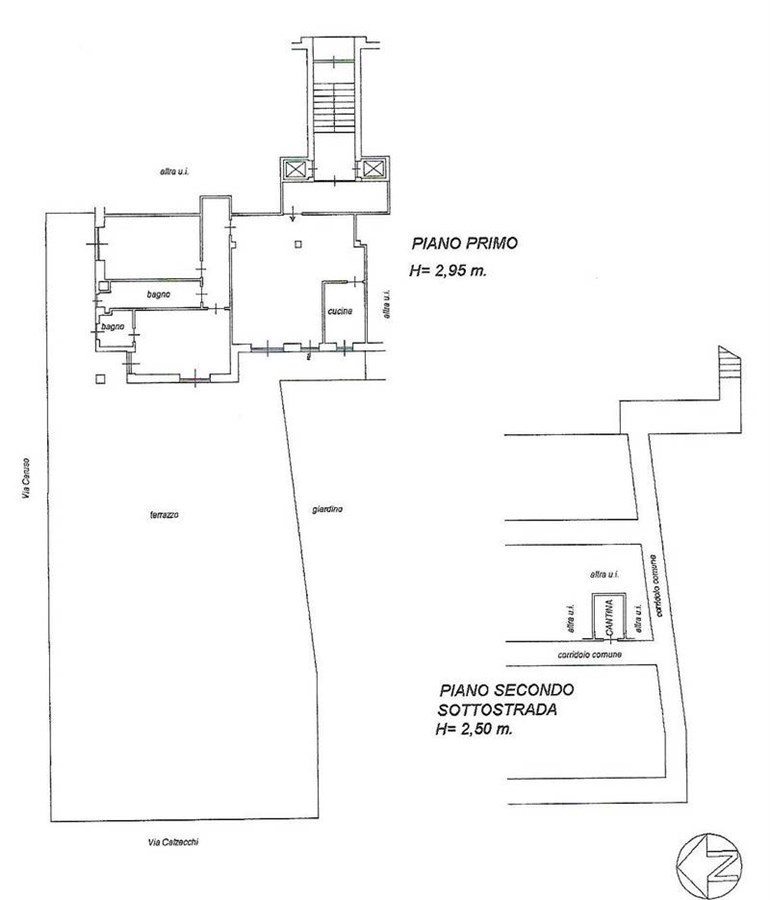
  • Superficie MQ 150
  • Cucina abitabile
  • Camere 2 + studio
  • Arredamento Semi arredato / non arredato
  • Posto auto doppio a parte € 68000
Descrizione

Appartamento in vendita Milano zona Città Studi – Via Enrico Caruso

In zona residenziale defilata dal traffico, molto comoda per la vicinanza a tutti i servizi necessari e ai più importanti istituiti accademici di tutta la città (Politecnico, Università Statale), alle migliori cliniche milanesi e ai più rinomati istituti di ricerca medica, proponiamo in vendita un bellissimo appartamento, molto luminoso di circa 115 mq arricchito dalla presenza di un meraviglioso terrazzo di 300 mq.

Lo spazio interno si compone di un accogliente soggiorno con angolo pranzo dal quale si accede al bellissimo terrazzo, una cucina, due ampie camere da letto e due bagni con finestra. Nelle nicchie sono stati ricavati preziosi ripostigli.  Il terrazzo, che si sviluppa lungo tutto il perimetro della casa, si estende principalmente davanti alla zona giorno dove è stata creata una zona privata attrezzata con un grande pergolato.

L’appartamento si presenta in perfette condizioni. E’ stato ristrutturato con grande cura una decina di anni fa con finiture di alto livello: per la pavimentazione in parquet è stata scelta l’essenza Iroko con un decoro in marmo verde Guatemala, per i bagni sono stati scelti i migliori marmi (Travertino, marmo di Carrara) arricchiti di decori con intarsi di materiali preziosi.

Serramenti in alluminio con doppi vetri, porta blindata, aria climatizzata in tutta la casa. Cantina di pertinenza. Servizio di portineria tutto il giorno.

Disponibilità di ampio box doppio per un prezzo a parte di € 68.000

Spese condominiali: € 3000/anno compreso il riscaldamento centralizzato con pannelli a soffitto.

Disponibile settembre 2021

Certificato energetico: in via di preparazione

Richiesta € 639.000 

Agenzia immobiliare Milano 

Mappa
*
*
*
*
*
*
*
*
inserisci il codice di controllo